Для замены старых опор и создания аварийного резерва ПАО «Россети» и ПАО «ФСК ЕЭС» рекомендуют использовать модификации унифицированных железобетонных опор, изготовленные с применением секционированных центрифугированных стоек типов СК22, СК26, СЦ20.
Данный электронный каталог предоставляет краткую информацию — схемы
С подробной информацией по каждой опоре можно ознакомиться в альбоме — Скачать подробную информацию — альбом 16.003 (pdf)
Модифицированные опоры ВЛ 110 кВ
ПБ110-3(с)
заменяет ПБ110-3
407-4-20/75 (проект 3082тм-т2)

Ветер 3 (650 Па)
Гололед 1-2 (10-15 мм)
Провод АСО240
ПБ110-5(с)
заменяет ПБ110-5
407-4-20/75 (проект 3082тм-т2)

Ветер 3 (650 Па)
Гололед 3-4 (20-25 мм)
Провод АС95, АС150, АС240
Трос С50
ПБ110-15(с)
заменяет ПБ110-15
3.407-131 (проект 9495тм-т1)

Ветер 3 (650 Па)
Гололед 3-4 (20-25 мм)
Провод С150
Трос С50
ПБ110-8(с)
заменяет ПБ110-8
407-4-20/75 (проект 3082тм-т2)

Ветер 3 (650 Па)
Гололед 1-4 (10-25 мм)
Провод АС150, АС240
Трос С50 (ТК-9.1)
1,2УБ110-7(с)
заменяет 1,2УБ110-7
3.407.1-151

Ветер 3-5 (650-800 Па)
Гололед 1-4 (10-25 мм)
Провод АС120/19
Трос С50
Модифицированные опоры ВЛ 220 кВ
ПБ220-1(с)
заменяет ПБ220-1
407-4-20/75 (проект 3082тм-т2)

Ветер 3 (650 Па)
Гололед 1-4 (10-25 мм)
Провод АСО300, АСО400
Трос С70 (ТК-11)
ПБ220-1Н(с)
заменяет ПБ220-1Н

Ветер 3 (650 Па)
Гололед 1-4 (10-25 мм)
Провод АСО300, АСО400
Трос С70 (ТК-11)
ПБ220-3(с)
заменяет ПБ220-3
проект 5734тм

Ветер 3 (650 Па)
Гололед 1-2 (10-15 мм)
Провод АСО300, АСО400
Трос С70 (ТК-11)
2СПБ220-1В
заменяет ПМО-1
и «рюмки» ПВ, ПШ

Ветер 1-3 (400-650 Па)
Гололед 1-3 (10-20 мм)
Провод АС300…АС500
Трос 11-М3-В-ОЖ-Н-Р
ПСБ220-1(с)
заменяет ПСБ220-1
407-4-20/75 (проект 3082тм-т2)

Ветер 3 (650 Па)
Гололед 1-4 (10-25 мм)
Провод АСО300, АСО400
Трос С70 (ТК-11)
ПСБ220-1-1(с)
заменяет ПСБ220-1-1

Ветер 3 (650 Па)
Гололед 3 (20 мм)
Провод АСО300/39
Трос С70 (ТК-11)
СПБ220-4КО
заменяет опоры ВЛ «Каширская ГРЭС»

Ветер 2 (400 Па)
Гололед 2 (15 мм)
Провод 2хАС500/66
Трос С70 (ТК-11)
ПВС220-АМ(с)
заменяет ПВС220-АМ

Ветер 3 (650 Па)
Гололед 3 (20 мм)
Провод АС300/39
Трос С70 (ТК-11)
ПБД220-2(с)
заменяет ПБД220-2

Ветер 3 (650 Па)
Гололед 1-2 (10-15 мм)
Провод АС300/39, АС400/51
Трос С70 (ТК-11)
ПБД220-2К(с)
заменяет ПБД220-1

Ветер 3 (650 Па)
Гололед 1-2 (10-15 мм)
Провод АС300/39, АС400/51
Трос С70 (ТК-11)
ПВСД-220(с)
заменяет ПВСД-220

Ветер 3-5 (650-800 Па)
Гололед 1-4 (10-25 мм)
Провод АС120/19
Трос С70 (ТК-11)
ПБ220-12(с)
заменяет ПБ220-12
3.407-131

Ветер 3 (650 Па)
Гололед 1-4 (10-25 мм)
Провод АС300/39, АС400/51
Трос С70 (ТК-70)
Модифицированные опоры ВЛ 330 кВ
ПБ330-1(с)
заменяет ПБ330-1
и ПВС330А-1
407-4-20/75 (проект 3082тм-т2)

Ветер 3 (650 Па)
Гололед 1-4 (10-25 мм)
Провод 2хАСО300, 2хАСО400
Трос С70 (ТК-11)
ПБ330-7Н(с)
заменяет ПБ330-7Н
проект 7073тм-т4

Ветер 3 (650 Па)
Гололед 1-4 (10-25 мм)
Провод АС300/39, АС400/51
Трос С70 (ТК-11)
ПБ330-4(с)
заменяет ПБ330-4
проект 7073тм-т5

Ветер 3 (650 Па)
Гололед 1-4 (10-25 мм)
Провод 2хАС300/39, 2хАС400/51
Трос С70 (ТК-11)
Модифицированные опоры ВЛ 500 кВ
1ПБ500-1(с)
заменяет 1ПБ500-1
проект 13035тм-т2

Ветер 3 (650 Па)
Гололед 2-4 (15-25 мм)
Провод 3хАС330/43, 3хАС40/51
Трос АС70-П2
ПБ500-5Н(с)
заменяет ПБ500-5Н, ПБ500-1, ПВС500
проекты 7073тм, 3546тм

Ветер 3 (650 Па)
Гололед 2-3 (15-20 мм)
Провод 3хАС330/43, 3хАС400/51
Трос С70 (ТК-11)
ПБ500-7ну(с)
заменяет ПБ500-7ну
проект 13048тм-т1

Ветер 4 (700 Па)
Гололед 3 (20 мм)
Провод 3хАС300/67
Трос АС70/72
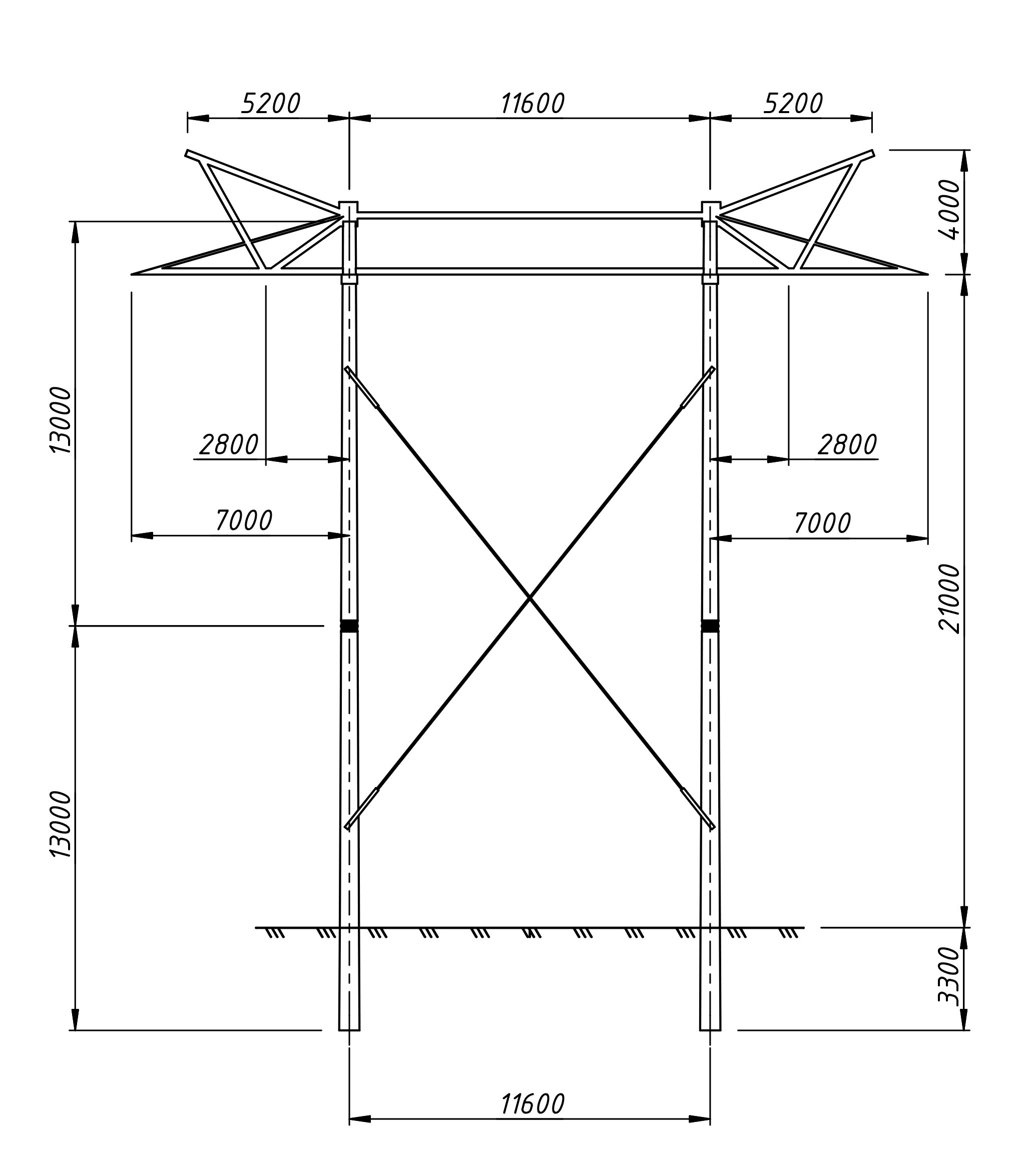
Прожекторные мачты
Прожекторная
мачта ПМЖ-22.8ПП

Прожекторная мачта ПМЖ-22.8ПП с двумя дополнительными площадками для отдыха на базе типовых мачт
Вернуться в общий каталог / скачать подробную информацию — альбом 16.003 (pdf)
Получить дополнительную информацию можно, направив запрос на почту info@nilkes.ru
